Summer Colours Fun HD LWP
1.0 February 14, 2026- 8.1
- 1
- 2
- 3
- 4
- 5
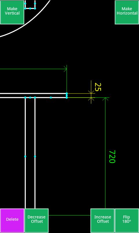
Create CAD drawings with speed and ease.
Inard was created with the vision to empower users to create CAD drawings with speed and ease. It combines the speed of the touch screen with efficient basic AutoCAD features.
Inard is not using a traditional AutoCAD interface since that will not work well on small screens. Use the interactive help to get you up and running quickly. Inard prompts the user with relevant actions dependent on what has been chosen on the screen and use sane defaults where possible. This approach does not clutter the interface and minimizes number of steps needed to achieve result. To reach full potential the user need to spend a few minutes to learn Inard CAD.
Inard supports lines, arcs, circles, rectangles, areas, text and distances. Double finger touch is used to support snap, near, and intercept selections. The basic editing features Copy, Move, Rotate and Delete are supported as well as the more advanced CAD features Extend, Fillet, Mirror, Offset, Trim, Split. Line widths, text heights, distances are adapting to the size of the drawing as it grows. Line type, line width, text height, and color can be modified by editing existing layers. Sharing the result as an Image, PDF, DXF or Inard file is done with a few clicks (Pro version only).
Some of these features are only supported in the pro version.